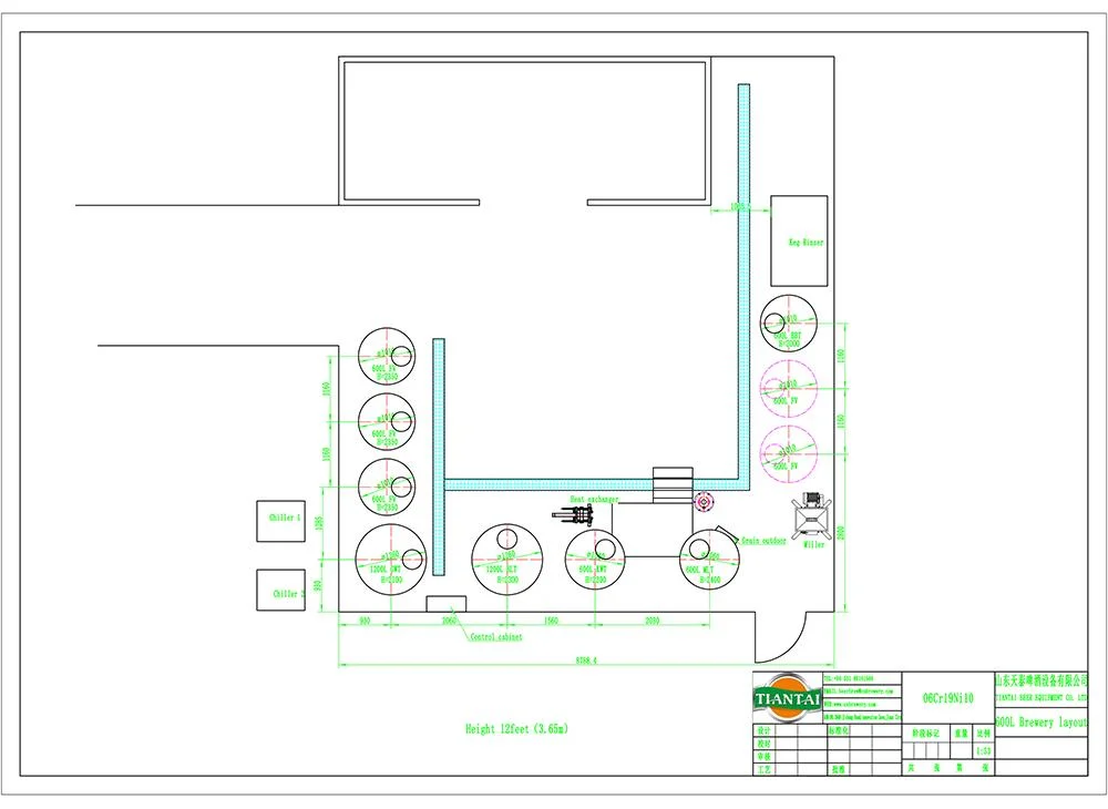
We have engaged in extensive discussions regarding the 5bbl brewery equipment, covering aspects such as configuration, technical drawings, and site considerations. Based on the provided floor plan, we have designed the 5bbl brewery equipment layout tailored to the customer’s requirements.

The customer has prepared the site for the 5bbl brewery equipment! Looking forward to the arrival of the 5bbl brewery equipment.

The 5bbl brewery equipment was produced on time and arrived home smoothly by sea!

Arrange the 5bbl brewery equipment according to the layout and get ready for installation!


Brewing day~

Cheers to Grace Note Brewing!


TIANTAI company works for all brewery with high quality brewery equipment. We supply 2-150bbl complete brewery system including malt milling equipment, brewhouse equipment, fermenters, brite beer tanks, beer bottling machine,beer canning machine, beer kegging machine, hopping machine, yeast propagation equipment. We also supply all auxiliary brewery systems like steam heating pipe and valves, water treatment, filter, air compressor etc. Everything in brewery are all in our list.
Warmly welcome your inquiry!
Edited by Damon
E-mail: biz@cnbrewery.com
