Wilddog-Tiemann Beer Brewing Company has proudly launched their very first craft brewery in Zambia with a 2000L brewery system supplied by Tiantai Company. The system features a 2-vessel brewhouse, 2000L fermentation tanks, and a 2000L bright beer tank etc., marking an exciting milestone for craft beer in the country.

2000L Brewery Equipment – Experienced Brewer and Customization for His Space
Customer is from Australia and has brewed a lot of beer and wine himself, so he is a very experienced brewer.
He knows us from many of our customers like Black Hops Brewery, Ballistic Brewery, and Laughing Bones Brewery, etc.
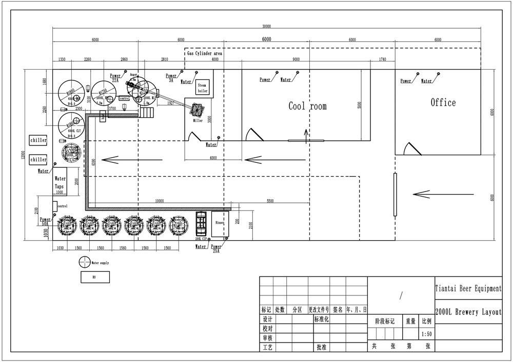
He visited Tiantai Beer Equipment Company and also showed us his building space as below, and we have customized the tanks extensively to fit his space.


The customer has successfully completed the installation of the 2000L brewery equipment. It was not an easy task, but their careful work and dedication made it possible.

2000L fermentation tank with customized diameter to put more in one containers to save sea freight.

The brewing day begins with the 2000L brewery equipment in action. Let us see what happens next:
Malt milling

Mashing&Lautering

Check the Wort.


After two weeks fermentation, the craft beer is ready! Enjoy the beer made by Tiantai Beer Equipment company!

Brewing completed, followed by CIP cleaning.

Cheers to Wilddog-Tiemann Beer Brewing Co. and welcome to there for some great beer!

The whole brewery system includes mash/lauter tun, kettle/whirlpool tun, wort cooling heat exchanger, fermentation tanks, and bright beer tanks. If you are looking for professional support for your brewing business, TIANTAI is your trusted partner. We provide complete solutions not only for breweries, but also for distilleries, wineries, and kombucha production systems.
Whether you are starting a new brewery or expanding an existing one, contact us today to discuss your project and discover how Tiantai can bring your brewing vision to life.
Cassie
Email: tiantaibrewery@cnbrewery.com
