7BBL Brewery Equipment Smooth Opening in USA–Louisiana Purchase Brewing Company

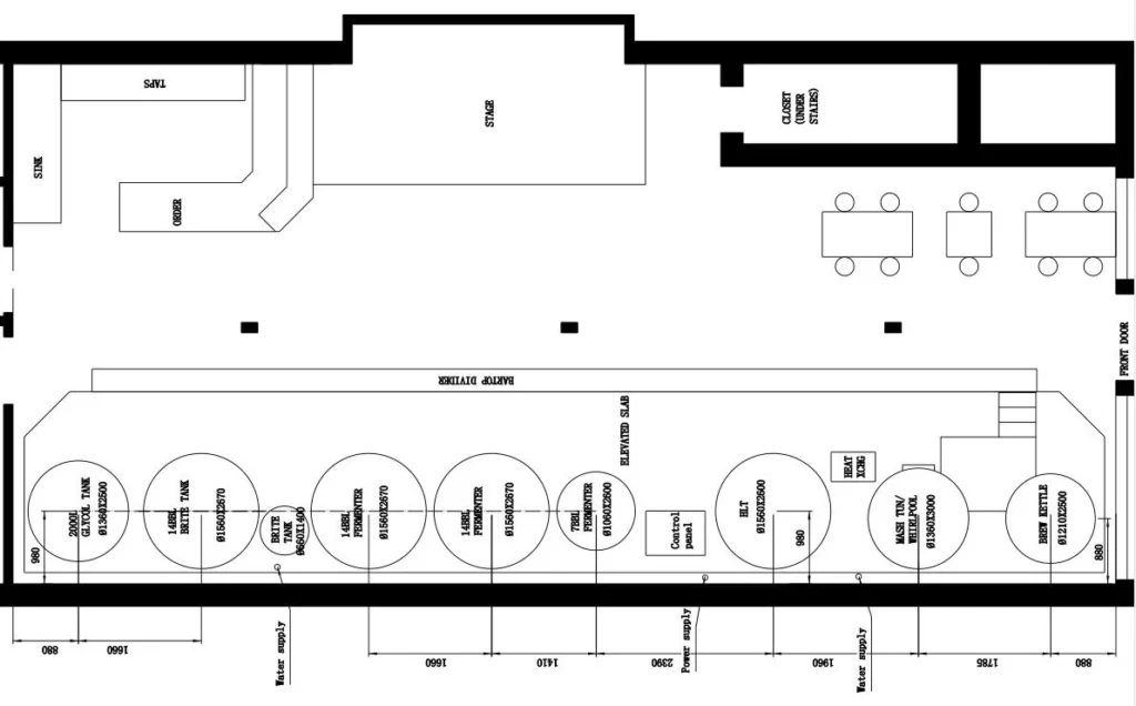
Fermentation Unit – Includes 2×14 bbl fermenters, 1×7 bbl fermenter, and 1×14 bbl brite tank.
Glycol Chilling Unit – Comprising a 2000L glycol water tank and an 8 hp chiller.
Control Unit – Integrated instrument control cabinet.
CIP Unit – 100L caustic tank and sterilization tank mounted on a portable cart.
Kegging Equipment – Manual keg filler and rinser.
The 1 bbl pilot system features:

Brewhouse – Classic two-vessel setup: mash/lauter tun and combined kettle/whirlpool tun.
Fermentation Unit – 1×1 bbl brite tank.
Control Unit– Dedicated brewhouse instrument control cabinet.
Glycol Chilling Unit – Shared with the 7 bbl system, utilizing the same glycol chiller and control panel.
We designed the brewery layout based on the site plan, arranging all tanks in a single line to give customers a clear view of the beer-making process while they enjoy their drinks.

Due to visa processing delays that would have postponed our technician’s arrival by three weeks, Mr. Andy and his father—both with mechanical backgrounds—visited our factory for training on equipment installation and operation to save time. This decision greatly facilitated the installation process. As Mr. Andy remarked, “It proved to be the right move for us, both financially and for personal enjoyment.”

After approximately 40 days of shipping, 7BBL Brewery Equipment arrived smoothly in the USA.

Louisiana Purchase Brewing Co. did an outstanding job handling the installation—a challenging task that they completed successfully.

Cheers to Louisiana Purchase Brewing Co.!

If you’re near Louisiana Purchase Brewing Co., we welcome you to visit and see TIANTAI 7bbl brewery equipment in action while enjoying great beer!

At TIANTAI, we are committed to providing high-quality brewing equipment for breweries of all sizes. We supply complete 1–150 bbl systems, including malt milling equipment, brewhouse vessels, fermenters, brite tanks, bottling machines, canning lines, kegging systems, hopping machines, and yeast propagation equipment. We also offer auxiliary systems such as steam heating pipelines and valves, water treatment units, filters, air compressors, and more—essentially everything needed for a brewery.
We warmly welcome your inquiries! PS: 1BBL=117liters
Damon
Email: biz@cnbrewery.com
