We are often deeply moved by stories of growth in times of adversity. It is the spirit behind these stories — persistence, dedication, and hard work — that truly resonates with us. The year 2020 was extremely challenging for breweries around the world. Many were forced to close temporarily or permanently, while others struggled to survive under unprecedented pressure. In this case, we are proud to share the story of a brewery that achieved remarkable growth during the COVID-19 period with the support of a 20HL micro brewery equipment solution.
Moffat Beach Brewing Co. is located on Australia’s beautiful Sunshine Coast. Founded by a long-time couple, Matt and Shaz, the brewery is built on passion, commitment, and a shared love for craft beer. In 2019, they ordered a complete set of 20HL micro brewery equipment from Tiantai. The system was successfully installed and commissioned in 2020, enabling their brewery to expand production and achieve a major breakthrough despite the challenges brought by the pandemic.
1. Meeting at Shanghai CBB
In September 2018, Tiantai showcased a carefully prepared 20HL four-vessel brewhouse system at the Shanghai CBB Exhibition, aiming to present our latest progress and manufacturing capabilities to the global market.
At the same time, Matt and Shaz(Matt’s wife) were actively searching for a reliable brewery equipment manufacturer to expand their existing 3HL brewpub. With this goal in mind, they visited our booth at the exhibition. It was there, in Shanghai, that our paths crossed and the foundation for this collaboration was established.

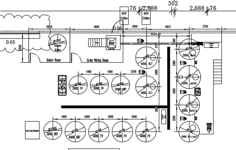
2. Consultation & Discussion for the 20HL Micro Brewery Equipment Project
From October 2018 to October 2019, Tiantai and Matt engaged in nearly a year of in-depth discussions for the 20HL microbrewery project. From a purely technical perspective, the system design could have been finalized within one month. However, the project faced various real-world challenges, including financing arrangements, site uncertainty, and approval from the local council — all of which required time and careful coordination.
Throughout this period, our communication on the technical aspects of the beer brewing equipment remained efficient and productive. Below are the customized equipment layout drawings and container packing plans developed during the project planning stage.


In September 2019, we participated in the Brewcon fair hold in Melbourne. Taking this opportunity, we asked Matt if it was possible to visit his new brewery site for the 2000L micro brewery equipment project, Matt & Shaz happily agreed and hospitably treated us.

3.Production & Delivery of 20HL Micro Brewery Equipment
After various challenges were solved one by one, the 2000L micro brewery equipment has finally begun to be produced.


After more than three months, the 2000L brewery system was completely finished in our factory.
Many people who have seen the equipment say that it looks so beautiful and is a masterpiece.
Yes, we think so too! 🙂
Because we really treat every beer brewing equipment produced in our factory very carefully. We strictly demand ourselves and every link of processing and quality inspection.


We carefully packed and loaded them into containers as if they were our children.

4.Installation & Commissioning of 20HL Micro Brewery System
21 days is the shipping time from Qingdao Port to Brisbane Port.
Matt said he was very satisfied when they saw these equipment stood in front of them.




Due to Covid-19, we were unable to successfully send our engineers to Matt’s site for project installation and commissioning.
Therefore, Matt found a local installation team, and then we provided technical support (such as videos, photos and replies to some specific questions). This was the best method we could think of at the time.


After about a month of installation, they finally started commissioning the equipment.
Although I was not there on the day of testing the 20HL brewery system, I was really nervous. Because of their hard work and cleverness, coupled with the better quality of the equipment we provided, the commissioning was very smooth.
Congratulations!
5.Happy Brewing Time
Matt is a very experienced brewmaster. Their beer has won many awards in various craft beer competitions in Australia.




Barley crushing, mashing, lautering, boiling, whirlpool, wort cooling… …

Matt told us that everything went well and he hit all of his target numbers when he done the first batch of beer with this 2000L micro brewery equipment.
6.Happy Opening Time
The 2000L production brewery is located in Moffat Beach, Caloundra, Queensland 4551 Australia.
When you go there to drink some amazing beer, I think you would find the couple very kind, optimistic and hardworking. I believe this is also an important reason why their brewery is getting better and better.



If you are also interested in our brewery system, please contact us.
We would be happy to reply you!
Edited by Damon
Email: biz@cnbrewery.com
